La Gerencia de Urbanismo ha aprobado el Proyecto de Ampliación del Centro Sociocultural de El Salobral, por lo que pronto saldrán a licitación las obras que ya habían sido anunciadas por el Equipo de Gobierno y que tendrán una duración prevista de ocho meses desde su adjudicación.
El concejal de Infraestructuras, Julián Garijo, ha recordado que “el Pleno del pasado mes de noviembre aprobó por unanimidad modificar el Plan General de Ordenación Urbana, un trámite necesario para cambiar el uso del suelo, que pasó de uso residencial a dotacional. La aprobación urbanística del proyecto da vía libre ya al proceso de licitación”.
El edil ha afirmado que “nuestras pedanías son barrios de la ciudad, y debemos dotarlas de los mejores servicios”, y ha puesto en valor el trabajo de la pedánea, Olaya Sarrión, para representar y defender a sus vecinos y sacar adelante el proyecto de ampliación.
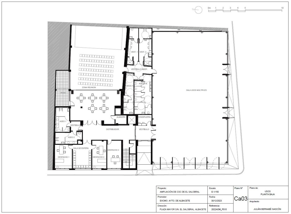
El presupuesto de licitación de la obra es ligeramente superior a un millón de euros, y consiste en una reforma parcial del centro existente para darle continuidad y conexión con la ampliación, que se realizará adosando un nuevo edificio al existente para albergar eventos de carácter multitudinario.
Garijo ha detallado que se demolerá el saliente que da al solar, donde hay actualmente vestuarios y aseos, y también la planta primera situada al fondo del edificio y su escalera de acceso. Se crearán unos nuevos vestuarios y aseos totalmente accesibles, y el acceso al edificio se hará por la fachada de la plaza, adecuando el vestíbulo para acceder al centro actual girando a la izquierda, y a la ampliación girando a la derecha.
La ampliación será un espacio diáfano de más de 400 metros cuadrados útiles, el doble del salón de actos actual, y toda su fachada a la plaza se ejecutará con una superficie acristalada de puertas contiguas y pivotantes, de modo que cuando albergue actividades pueda quedar abierta completamente (tipo carpa).
El concejal ha asegurado que “la ampliación del Centro Sociocultural dará más vida y posibilidades a El Salobral y a todos sus vecinos, ya que podrán realizarse actividades que hasta ahora no tenían cabida por falta de espacio”.
